Продаю частный, отдельно стоящий дом 56 кв. м. Участок 5 сот
Информация
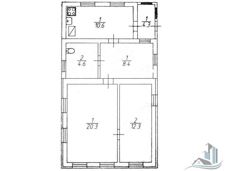
Продаю частный, отдельно стоящий дом общей площадью 56 кв. м, расположенный на участке 5 соток. Год постройки 1961 г.
Месторасположение: г. Саратов, Ленинский район, ул. 6-й Ново-Автобусный тупик.
В доме 3 комнаты, площадь 8,4/12,3/20,3 кв. м., санузел (туалет) находится в доме, кухня - 10,6 кв.м. Отопление индивидуальное газовое. Канализация - выгребная яма. Дом обложен кирпичом, крыша новая. На участке 5 соток есть плодовые деревья, дворовые постройки - баня, гараж. Хорошая транспортная доступность.
Дом и земля в собственности. Чистая продажа. Никто не прописан. Быстрый выход на сделку.
Если Вы хотите купить этот дом, но своя недвижимость еще не продана, звоните - консультации бесплатные!















